Casas adosadas a la venta en San Javier

289,000

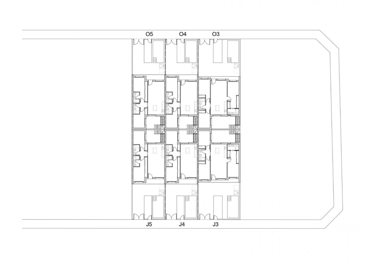
ADOSADOS DE OBRA NUEVA EN SAN JAVIER Complejo de lujo de nueva construcción de 24 villas de una o dos plantas con piscina privada, zona de terraza y solarium con cocina de verano que permite disfrutar de todas las horas de sol, todos los días del año. Cada villa dispone de 2 o 3 dormitorios y 2 baños equipados en una sola planta o 3 dormitorios y 3 baños equipados en dos niveles. Diseñadas con un estilo contemporáneo y un concepto abierto, compuesto por una cocina totalmente equipada y un salón-comedor. La promoción está situada en San Javier (Murcia), cerca de la playa, rodeada de servicios, parques, instalaciones deportivas y varios campos de golf. La vivienda cumplirá con los más altos estándares y estará equipada con: Piscina privada con ducha. Cocina completamente amueblada y equipada con horno, microondas, frigorífico, lavavajillas integrado, placa de cocción y campana extractora. Iluminación: tanto en el interior de la vivienda (comedor, cocina, pasillos y baños) como en las zonas exteriores. Armarios forrados con cajones. Cuartos de baño totalmente equipados con inodoro, mueble de baño, espejo y ducha con mamparas. Preinstalación de aire acondicionado por conductos. Solarium con cocina de verano. Plaza de aparcamiento en la parcela. San Javier está cerca de todos los servicios con fácil acceso a la playa, deportes acuáticos, tiendas y la red de transporte. Aquí puede disfrutar de todas las instalaciones que San Javier tiene para ofrecer como las tiendas locales, bares y restaurantes, así como estar cerca de los centros comerciales, el aeropuerto de Murcia y todos los hermosos lugares que se encuentran a lo largo del Mar Menor. El aeropuerto de Corvera/Murcia está a 30 minutos y el de Alicante a 45 minutos.

Detalles vivienda
Referencia: 764750
Precio: 289,000
Tamaño vivienda: 77m2
Parcela: 152m2
Dormitorios: 2
Baños: 2
Lista: 11/02/2026

Realizar una consulta

Referencia: 764750

Tina Durán

Teléfono: (+34) 661 207 385

Movil: (+34) 661 207 385

Correo electrónico: tina@sunvillasmurcia.com

(Abrir en una nueva ventana)
Realizar una consulta
Referencia: 764750

Teléfono:
(+34) 661 207 385

Movil:
(+34) 661 207 385

Correo electrónico:

Realizar una consulta

Compartir

Viviendas similares